Adria X01
€
67 055-93 060
Adria X01
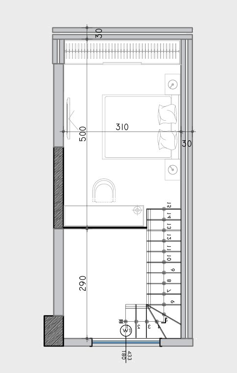
Mieszkanie dwupoziomowe na parterze lub czwartym piętrze
Powierzchnia całkowita 56,4m2, powierzchnia wewnętrzna 44,3m2
Orientacja: północ lub południe
Cena za m2 1250-1650 € W zależności od budynku, piętra, orientacji i systemu płatności
Skontaktuj się z nami


lub zostaw swoje dane,
odezwiemy się do Ciebie
odezwiemy się do Ciebie




