Adria X09
€
57 915-64 350
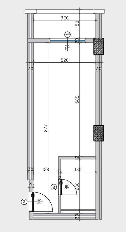
Adria X09
Kawalerka na piętrach 1-3
Powierzchnia całkowita 42,9m2, powierzchnia wewnętrzna 37,1m2
Orientacja: północ
Cena za m2 1350-1500 € W zależności od budynku i systemu płatności
Skontaktuj się z nami


lub zostaw swoje dane,
odezwiemy się do Ciebie
odezwiemy się do Ciebie




