Hestia 0402
€
56 040
O nieruchomości
Hestia Residence to nowoczesna inwestycja mieszkaniowa w samym centrum turystycznego Golem, położona w niewielkiej odległości od plaży, pośród hoteli, barów i restauracji co zapewnia dostęp do wakacyjnej infrastruktury. Oferuje apartamenty typu Studio, 1+1, 2+1 oraz Loft (Duplex), co zapewnia duży wybór mieszkań zarówno w celach inwestycyjnych (najem), jak i mieszkalnych (apartamenty wakacyjne i całoroczne). Przewidywany termin oddania inwestycji maj/czerwiec 2028
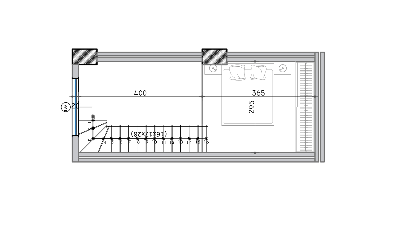
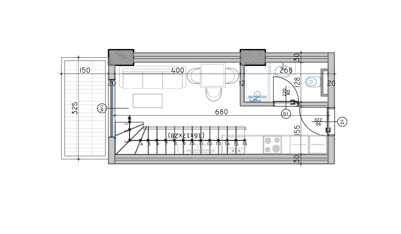
Mieszkanie typu Loft na czwartym piętrze
Powierzchnia całkowita 46,7m2, powierzchnia wewnętrzna 35,8m2 + balkon 4,9m2
Orientacja zachodnia
Więcej informacji: WhatsApp +48664551002 lub +48692702101
Skontaktuj się z nami


lub zostaw swoje dane,
odezwiemy się do Ciebie
odezwiemy się do Ciebie








.jpeg)
.jpeg)
